Description
This wonderful, detached family home, believed to have been constructed in 1990, and enjoys a fantastic, mature setting, surrounded by its own large country gardens. The versatile accommodation benefits from UPVC double glazing and oil fired central heating, with the ground floor accommodation comprising a fitted kitchen/breakfast room, large sitting/dining room with central log burning stove, study/snug, utility room and a generous hall with downstairs shower room. Upstairs is an excellent principal bedroom with wardrobes, a fabulous outlook and en-suite, whilst there are three further double bedrooms and a refitted family shower room. The mature gardens are an absolute delight, and further enhanced by the private driveway parking and double garage with loft room. An early inspection of this exceptional, modern village home within easy reach of the M5 and Exeter is strongly recommended.
Description
This wonderful, detached family home, believed to have been constructed in 1990, and enjoys a fantastic, mature setting, surrounded by its own large country gardens. The versatile accommodation benefits from UPVC double glazing and oil fired central heating, with the ground floor accommodation comprising a fitted kitchen/breakfast room, large sitting/dining room with central log burning stove, study/snug, utility room and a generous hall with downstairs shower room. Upstairs is an excellent principal bedroom with wardrobes, a fabulous outlook and en-suite, whilst there are three further double bedrooms and a refitted family shower room. The mature gardens are an absolute delight, and further enhanced by the private driveway parking and double garage with loft room. An early inspection of this exceptional, modern village home within easy reach of the M5 and Exeter is strongly recommended.
Situation and Amenities
Nestled in a mature setting, backing onto farmland on the outskirts of this popular village, with its Ofsted rated “good” primary school and community run Five Bells Public House, the village offers a wonderful rural feel and friendly community, whilst being within easy reach of Exeter and transport links. The nearby country town of Cullompton offers High Street shops, and two supermarkets, together with the M5 intersection, facilitating rapid commuting south to the Cathedral City of Exeter and north to the County Town of Taunton. The surrounding countryside offers a wealth of rural pursuits, with the nearby Blackdown Hills being designated as an area of outstanding natural beauty. The comparatively central Mid Devon location places the stunning national parks of Dartmoor and Exmoor together with the north and south Devon coastlines all within a modest car journey.
Bullet Points
Impressive detached village home
Oil central heating and double glazing
Impressing Sitting/Dining Room
Generous Hall with downstairs Shower Room
Study/Snug
Country Kitchen/Breakfast Room
Utility Room
Principal Bedroom with wardrobes and En-Suite
Three further generous Bedrooms
Family Shower Room
Large mature country gardens
Double Garage with Loft Room
Driveway parking
Oil fired central heating
14 miles Exeter, 23 miles Taunton
Tiverton Parkway Railway Station 10 miles
EPC rating “E”
Council Tax Band ”F”
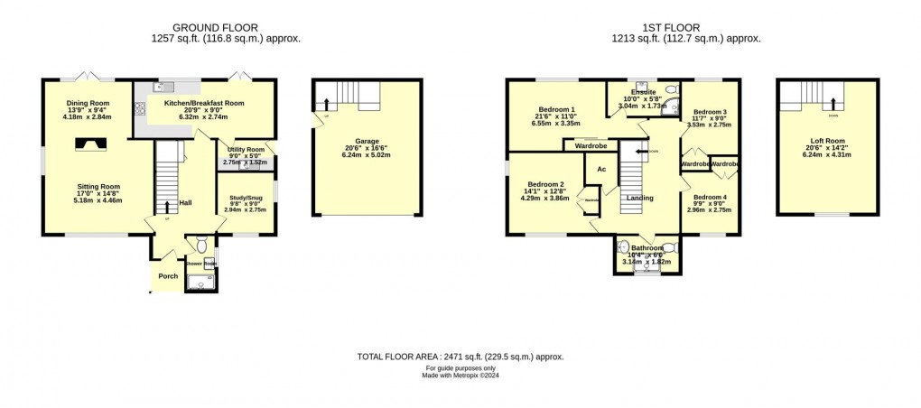
On The Ground Floor
Covered Entrance to part glazed UPVC front door.
Spacious Entrance Hall with stairs rising to first floor, radiator, access to understairs storage cupboard.
Shower Room with modern white suite comprising close coupled W.C., basin with storage beneath, shower cubicle with glass folding shower door, electric shower, fully tiled walls, extractor fan, obscure glass window, radiator.
Sitting/Living Room a wonderfully spacious, triple aspect room with windows to the front and side and French doors opening out to the rear garden, fireplace housing log burning stove, creating a wonderful, central, focal point, perfect to be used as Two Sitting Areas or could alternatively be Sitting and Dining Areas, two radiators, spot lighting, television point.
Study/Snug a lovely dual aspect room with outlook over side garden, radiator, ideal for those wishing to work from home.
Kitchen/Breakfast Room fitted Kitchen with a generous array of both wall and base mounted cupboards, two drawer packs, tall integrated fridge, integrated dishwasher, granite worktops with inset stainless steel one and a half bowl sink, inset four ring electric hob with extractor over, integrated oven and microwave, spotlighting, wonderful outlook over rear garden and Dining Area with French doors opening out to the rear garden, radiator, tile effect flooring throughout.
Utility Room with both base and wall mounted cupboards, laminate worktop with inset stainless steel single drainer sink, mixer tap, space and plumbing for washing machine, space for under counter freezer, door to rear garden, continuation of tile effect flooring.
On The First Floor
Impressive Galleried Landing with access to loft, large airing cupboard with slatted shelving and radiator.
Bedroom 1 a fabulous double room with outlook over rear garden to countryside beyond, extensive range of fitted wardrobes with sliding doors, radiator, spotlighting.
En-Suite recently refitted in contemporary style with suite comprising close coupled W.C., basin with storage beneath, corner shower cubicle with glass sliding shower doors, aqua panel walls, mains shower, chrome ladder-style towel rail/radiator, obscure glass window, tile effect flooring, extractor fan.
Bedroom 2 another impressive dual aspect double room with outlook to the front, fitted double wardrobe, radiator.
Bedroom 3 with outlook to the front, radiator, fitted double wardrobe.
Bedroom 4 currently used as an Office with extensive range of fitted desk units and cupboards, lovely outlook over the garden and surrounding countryside, fitted double wardrobe, radiator.
Family Shower Room having been refitted in contemporary style, white suite comprising close coupled W.C., basin with storage beneath, large walk-in shower with glass sliding shower door, mains mixer shower, aqua panel walls, obscure glass window, extractor fan, chrome ladder-style towel rail/radiator, shelving.
Outside
The property is approached over a long tarmac driveway, and on arrival, there is ample parking, leading to the Double Garage with electric roller door, excellent storage with both light and power, electric car charging point, pedestrian door, stairs rising to Excellent Loft Space, currently used as a Workshop, but could equally provide space for a Family Games Room or Further Office for those needing to work from home. Pedestrian access leads down both sides of the property, where there is a substantial side garden with raised beds, Substantial Greenhouse, gravelled areas and patio seating areas, ideal for alfresco dining and entertaining. This area is enclosed by hedging and fencing and also houses the oil fired boiler and oil tank. A wide arch in the hedge leads to the extensive rear garden, taking in a wonderful southerly aspect, whilst backing onto open fields. This area of garden is predominantly laid to an expanse of lawn, with a large patio, accessed via both the Kitchen and Living Room, again providing a fantastic space for outdoor dining and entertaining. This area of garden is flanked by established shrub borders and specimen trees, whilst there is a Delightful Fish Pond and small area planted with fruit trees. The whole garden is enclosed by perimeter fencing and hedging, creating a safe environment for both children and pets. There are also outside taps and outside power sockets.
Services
The Vendor has advised of the following, and it is advised to check all this information prior to viewing:-
Main electricity and water
Oil fired central heating
Current utility providers:
Electricity - Octopus Energy
Water - S.W. Water
Private drainage
Mobile coverage: EE, O2, Vodafone and Three networks currently showing as available at the property
Current internet speed showing at: Basic - 15 Mbps; Ultrafast - 950 Mbps
Broadband: Voneus
Satellite/Fibre TV availability: BT and Sky
What 3 Words warriors.fils.blatantly
Floorplan
To discuss this property call our branch:
Market your property
with Thorne Carter and Aspen
Book a market appraisal for your property today. Our virtual options are still available if you prefer.
