Description
Having been greatly improved in recent years and lime rendered externally, this charming character cottage is located a short distance from the centre of the popular Duchy town of Bradninch and within easy reach of walks through country lanes and the nearby nature reserve.
Description
Having been greatly improved in recent years and lime rendered externally, this charming character cottage is located a short distance from the centre of the popular Duchy town of Bradninch and within easy reach of walks through country lanes and the nearby nature reserve. The ground floor accommodation comprises a sitting room with log burner, separate dining room, a fitted kitchen, a boot room and separate W.C. The first floor offers two generous bedrooms, the principal with fitted wardrobes, a modernised family bathroom and a separate W.C. Outside is an delight, with an established, predominantly hard landscaped garden, taking in a sunny aspect for those wishing to entertain. An early inspection is advised for those seeking a lovely cottage on the edge of this Duchy town, within easy reach of the M5 and Exeter.
Situation and Amenities
The house is located within a short walk of the Post Office Stores and Duchy primary school with frequent bus service to Exeter and Cullompton with its range of High Street Shops and Supermarkets. Cullompton also offers secondary schooling, two doctors surgeries, library and sports centre. The surrounding countryside offers a wealth of rural pursuits with the nearby Blackdown Hills being designated as an area of Outstanding Natural Beauty. The thriving Cathedral City of Exeter lies about 20 minutes to the south with its extensive High Street Shops, Princesshay Shopping Mall and many leisure pursuits. The comparatively central Mid Devon location places the spectacular National Parks of Dartmoor and Exmoor together with the north and south Devon coastlines all within a modest car journey.
Bullet Points
Charming period cottage
Popular Duchy town location
Separate Sitting and Dining Rooms
Fitted Kitchen
Boot Room and W.C.
Two Bedrooms
Updated Bathroom and W.C.
Sunny rear garden
Gas central heating and double glazing
Mains electricity, water, gas and drainage
8 miles Exeter, 21 miles Taunton
Tiverton parkway Railway Station 8 miles
EPC rating “F”
Council Tax Band “C”
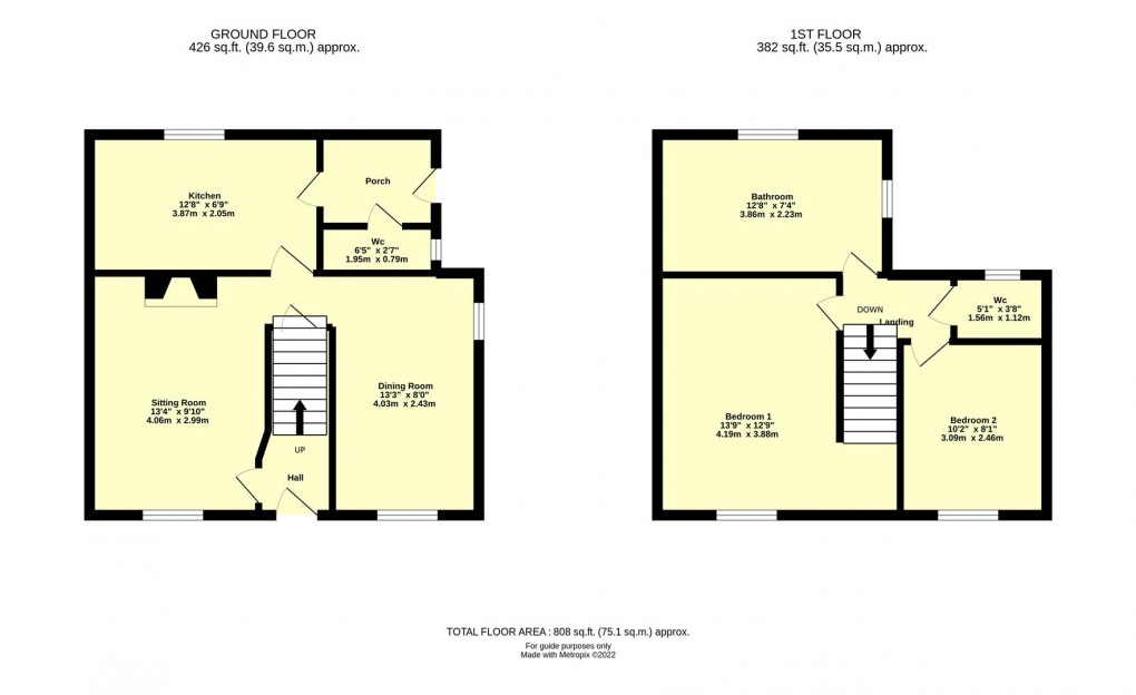
On The Ground Floor
Part glazed UPVC front door to
Hall with stairs rising to first floor, radiator.
Sitting Room a charming characterful room with window seat overlooking the front, feature fireplace with timber bressumer beam, log burning stove, alcove with shelving, television point, radiator.
Dining Room dual aspect with outlook to the front and side, a generously proportioned room with plenty of space for eight seater dining table, radiator.
Kitchen fitted in oak fronted units comprising a generous array of both wall and base mounted cupboards, laminate roll edge worktops with inset stainless steel one and a half bowl single drainer sink, mixer tap, integrated electric hob with double oven beneath and extractor over, space and plumbing for both dishwasher and washing machine, cupboard housing boiler, grey timber effect vinyl flooring, radiator, window with outlook over rear garden.
Boot Room with plenty of coat hook storage and space for shoe racks, currently housing tall fridge/freezer, grey timber effect vinyl flooring, pedestrian door to rear garden.
W.C. with wall mounted basin, close coupled W.C., obscure glass window.
On The First Floor
Landing with Cloakroom white close coupled W.C., obscure glass window, radiator.
Bedroom 1 a generous double room with outlook to the front, fitted double wardrobe, radiator.
Bedroom 2 another good sized bedroom with outlook to the front, access to loft, radiator.
Bathroom fitted in white suite comprising pedestal basin, panelled bath with mains mixer shower over, glass shower screen, part tiled walls, two obscure glass windows, grey timber effect vinyl flooring, extractor fan, storage cupboard with slatted shelving, radiator.
Outside
The property is approached over the quiet and peaceful road of Hen Street, leading to open countryside and beyond. To the side of the property is a pedestrian access gate leading to the rear garden. The rear garden is predominantly laid to hard landscaping with a mix of paving and gravel, providing extensive areas for alfresco entertaining, some raised and established shrub borders are flanked by perimeter fencing, creating a safe environment for both children and pets. There is also a Timber Garden Shed.
Services
The Vendor has advised of the following, and it is advised to check all this information prior to viewing:-
Main electricity, water, gas and drainage
Current utility providers:
Electricity - Octopus
Gas - Octopus
Water and drainage - S.W. Water
Mobile coverage: O2, EE and Vodafone networks currently showing as potentially available at the property
Current internet speed showing at: Basic - 11 Mbps; Superfast - 60 Mbps;
Telephone and Broadband: Currently with Vodafone
Satellite/Fibre TV availability: BT and Sky
Floorplan

EPC
To discuss this property call our branch:
Market your property
with Thorne Carter and Aspen
Book a market appraisal for your property today. Our virtual options are still available if you prefer.