Description
This well presented traditional town cottage is ideally suited for both first time buyers and investors, and is within easy reach of the town’s amenities and the M5 for commuting. The ground floor accommodation comprises a cozy sitting room with log burner and a spacious kitchen/dining room, whilst upstairs is a generous double bedroom, a further single bedroom and a family bathroom. Outside, the property benefits from a south facing, easy to maintain, courtyard garden with covered storage and garden store. An early viewing is advised for those seeking a charming first home or investment property.
Description
This well presented traditional town cottage is ideally suited for both first time buyers and investors, and is within easy reach of the town’s amenities and the M5 for commuting. The ground floor accommodation comprises a cozy sitting room with log burner and a spacious kitchen/dining room, whilst upstairs is a generous double bedroom, a further single bedroom and a family bathroom. Outside, the property benefits from a south facing, easy to maintain, courtyard garden with covered storage and garden store. An early viewing is advised for those seeking a charming first home or investment property.
Situation and Amenities
Right in the heart of town, just back from the High Street in a tucked away setting, great convenience and access to local amenities. The country town of Cullompton provides a useful range of everyday shopping, schooling and transport facilities including a bus service to Exeter every 20 minutes. The nearby M5 facilitates rapid commuting south to the cathedral city of Exeter and north to the county town of Taunton. The property enjoys distant views towards the Blackdown Hills an area designated as Outstanding Natural Beauty. For those wishing to enjoy the delights of Devon the picturesque National Parks of Dartmoor and Exmoor together with north and south Devon coastlines are all within a modest car journey. The stunning National Trust estate at Killerton with its fine country house, gardens, grounds and arboretum lies about five miles to the south.
Bullet Points
Well presented mid terraced town cottage
Convenient central location
Gas central heating and double glazing
Sitting Room with log burner
Spacious Kitchen/Dining Room
Generous Principal Bedroom
A further Single Bedroom
Modern Bathroom
Landing with storage
Sunny aspect garden
15 miles Exeter, 18 miles Taunton
Tiverton Parkway Railway Station 6 miles
EPC rating “C”
Council Tax Band “A”
Freehold
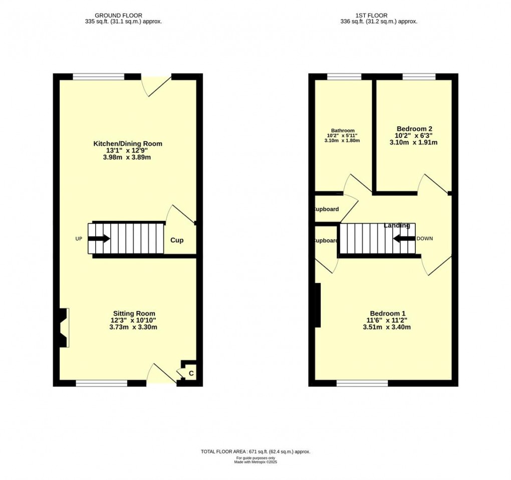
On The Ground Floor
Part glazed UPVC front door to
Sitting Room with feature log burning stove with timber mantel and surround, meter cupboard and storage, radiator, archway to
Inner Hall with stairs rising to first floor.
Kitchen/Dining Room a spacious room running the width of the house, fitted Kitchen comprising both wall and base mounted cupboards, laminate roll edge worktop with inset one and a half bowl single drainer sink, mixer tap, inset four ring gas hob with extractor over and oven beneath, space and plumbing for washing machine, space for tall fridge/freezer, wall mounted gas fired boiler, access to understairs storage cupboard, radiator, tiled flooring, space for family sized dining table.
On The First Floor
Landing with access to loft, radiator, storage cupboard with slatted shelving.
Bedroom 1 a generous double room running the width of the house, radiator, storage cupboard with shelving and hanging rails.
Bedroom 2 a single bedroom with outlook to the rear over rooftops to countryside beyond, radiator.
Bathroom white suite comprising W.C., pedestal basin, panelled bath with mains mixer shower over, glass shower screen, part tiled walls, tiled flooring, ladder-style towel rail/radiator, obscure glass windows, extractor fan.
Outside
The property benefits from a south facing courtyard-style garden which has been laid to paving for ease of maintenance. To the bottom of the garden is a covered area and Garden Store and the whole garden is fully enclosed by perimeter fencing, creating a safe environment for both children and pets.
Services
The Vendor has advised of the following, and it is advised to check all this information prior to viewing:-
Main electricity, water, gas and drainage
Current utility providers:
Electricity - Octopus Energy
Gas - Octopus Energy
Water and drainage - S.W. Water
Mobile coverage: EE, O2 and Three networks currently showing as available at the property
Current internet speed showing at: Basic - 18 Mbps; Superfast - 80 Mbps; Ultrafast - 1800 Mbps
Broadband: Talk Talk
Satellite/Fibre TV availability: BT and Sky
Floorplan
To discuss this property call our branch:
Market your property
with Thorne Carter and Aspen
Book a market appraisal for your property today. Our virtual options are still available if you prefer.
