Description
This well presented semi-detached family home has been lovingly updated and maintained by the current owners and nestles in a mature cul-de-sac within easy reach of village amenities and the M5 for commuting. The ground floor accommodation comprises a spacious sitting/dining room, fitted kitchen and utility room, whilst upstairs, two double bedrooms, a single bedroom and a family bathroom are to be found. Outside, the property benefits from ample driveway parking and a very private rear garden. An early viewing for those seeking a well located village home is strongly advised.
Situation and Amenities
Just a short walk from village amenities including Co-op, village hall with tennis courts and the thriving Willand primary school. A more extensive range of shops is offered by the nearby country town of Cullompton with its High Street shops, two supermarkets, library, secondary schooling and sports centre. The surrounding countryside offers a wealth of rural pursuits with the nearby Blackdown Hills being designated as an area of Outstanding Natural Beauty. The comparatively central Mid Devon location places the spectacular National Parks of Dartmoor and Exmoor together with the north and south Devon coastlines all within a modest car journey.
Bullet Points
Well presented three bedroom family home
Popular cul-de-sac location
Spacious Sitting/Dining Room
Fitted Kitchen
Utility Room/W.C.
Two double Bedrooms
A further single Bedroom
Modern Bathroom
Private rear garden
Plenty of parking
Single Garage
16 miles Exeter, 17 miles Taunton
Tiverton Parkway Railway Station 3 miles
EPC rating “C”
Council Tax Band “C”
Freehold
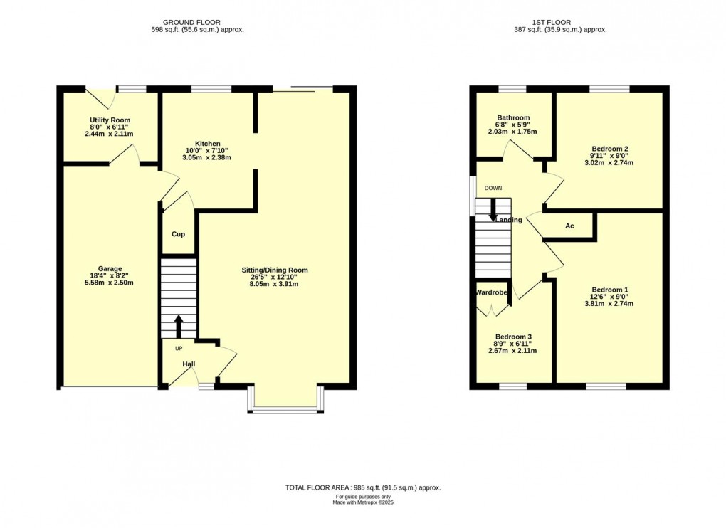
On The Ground Floor
Part glazed front door to
Hall with stairs rising to first floor, radiator.
Sitting/Dining Room a lovely bright and spacious “through” room with box bay window to the front and sliding patio doors to the rear, two radiators, Sitting Area being carpeted and timber effect flooring to the Dining Area.
Kitchen fitted in an extensive range of both wall and base mounted cupboards, drawer pack, laminate worktop with inset stainless steel single drainer sink, one cupboard housing gas fired boiler, space for freestanding cooker with extractor over, space for undercounter fridge, access to understairs cupboard/Panty, door to Single Garage which leads to the
Utility Room/Cloakroom an excellent extra space with two wall mounted cupboards, laminate worktop, space and plumbing for washing machine and tumble dryer, close coupled W.C. and basin, radiator, door to rear garden, tiled flooring.
On The First Floor
Landing with access to loft, airing cupboard housing hot water tank and slatted shelving.
Bedroom 1 a double room with outlook to the front, radiator, generous alcove, ideal for wardrobes.
Bedroom 2 another good size bedroom with outlook over rear garden, radiator.
Bedroom 3 a single room with outlook to the front, fitted wardrobe, radiator.
Bathroom with close coupled W.C., pedestal basin, panelled bath with electric shower over, glass shower screen, aqua panel walls, radiator/towel rail, obscure glass window.
Outside
To the front of the property is an extensive gravelled driveway providing parking for multiple vehicles, whilst the rest of the front garden has been laid to lawn. The rear garden can be accessed through the Garage and takes in a remarkably private aspect with an extensive area of patio, ideal for alfresco dining and entertaining, with the rest being laid to lawn with established shrub borders and a further smaller area of patio next to the Substantial Timber Garden Shed. The garden is fully enclosed by perimeter fencing, creating a safe environment for both children and pets.
Services
The Vendors have advised of the following, and it is advised to check all this information prior to viewing:-
Mains electricity, water, gas and drainage
Current utility providers:
Electricity - EDF Energy
Gas - EDF Energy
Water and drainage - S.W. Water
Mobile coverage: O2 network currently showing as available at the property
Current internet speed showing at: Basic - 2 Mbps; Superfast - 80 Mbps; Ultrafast - 1800 Mbps
Telephone: Landline connected in the property
Satellite/Fibre TV availability: Gigaclear
Floorplan
To discuss this property call our branch:
Market your property
with Thorne Carter and Aspen
Book a market appraisal for your property today. Our virtual options are still available if you prefer.
