Description
This Freehold building comes to the market for the first time in many years and offers a prominently located lock-up shop and spacious maisonette. The shop offers a bright and spacious store front with kitchenette and W.C. on the ground floor, whilst the maisonette occupies the first and second floors and comprises a large kitchen/living room, W.C., spacious double bedroom and en-suite. With tenant in-situ in the maisonette and a highly attractive shop front, the property is sure to appeal to investors.
Situation and Amenities
Enjoying a prominent setting on Fore Street close to shops, supermarkets, primary school and doctors’ surgeries. Cullompton also boasts an award winning butcher (Veyseys of Cullompton), charming The Bake House and Lime Tree coffee shop/restaurants, a modern library, sports centre and community centre. The surrounding countryside offers a wealth of rural pursuits with the nearby Blackdown Hills being designated as an area of outstanding natural beauty. The comparatively central mid Devon location places the picturesque national parks of Dartmoor and Exmoor together with the north and south Devon coastlines all within a modest car journey.
Bullet Points
Excellent Freehold investment opportunity
Prominent Fore Street shop, Kitchenette and W.C.
Spacious Maisonette
Generous Kitchen/Living Room
Large Double Bedroom with En-Suite
Cloakroom
Electric heating
Quick access to transport links
15 miles Exeter, 18 miles Taunton
Tiverton Parkway Railway Station 6 miles
EPC rating Shop: “C” (Commercial)
EPC rating Flat: “E”
Council Tax Band: Shop: None
Council Tax Band: Flat: “A”
Freehold
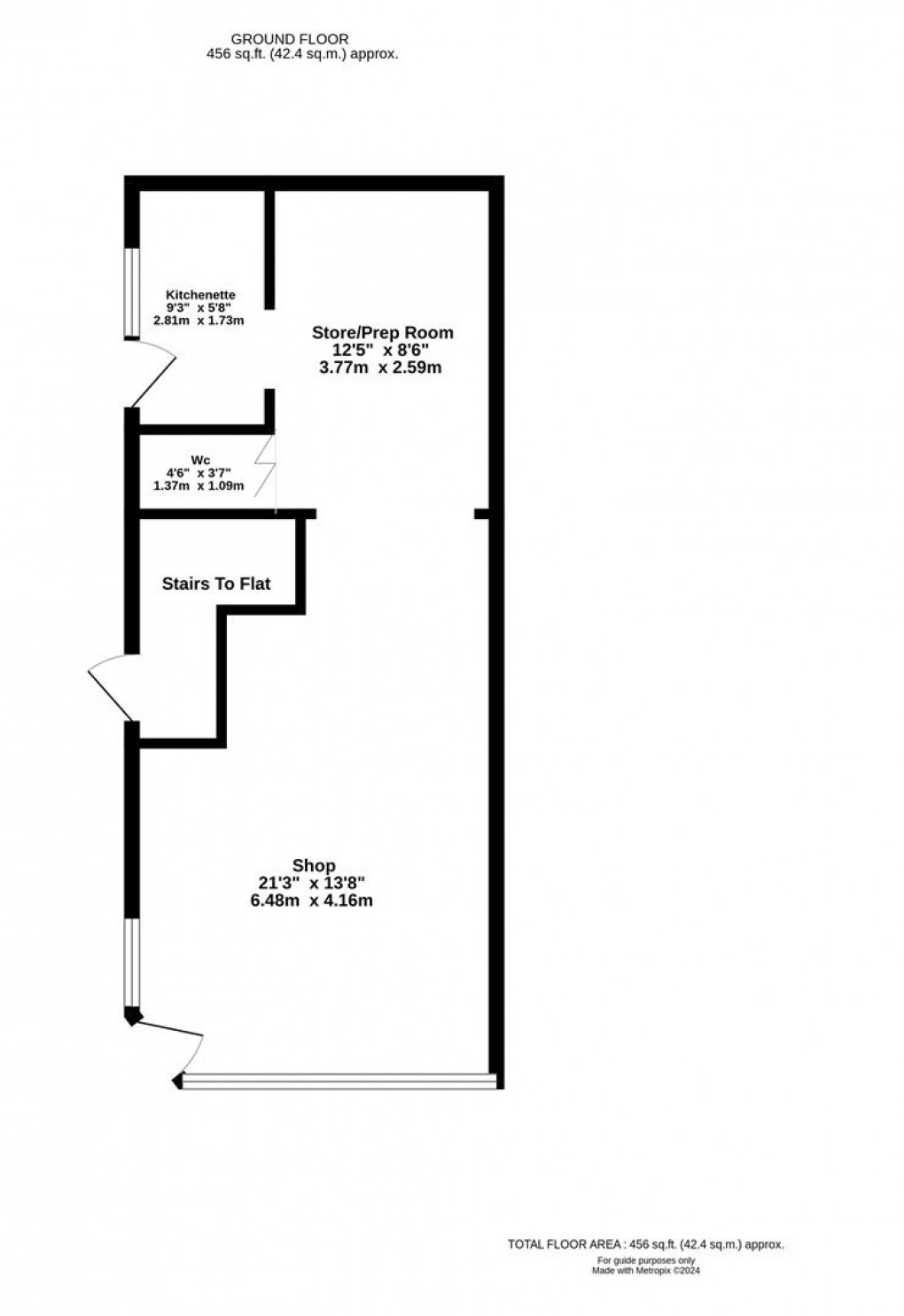
Shop - Ground Floor
Attractive lock-up shop with large window frontage, having been recently decorated, split level with two steps leading up to the
Rear Cloakroom with W.C. and basin.
Kitchen Area with two base cupboards, sink and drainer, door to Bakers Mews.
Flat Ground Floor
Entrance door to Lobby with stairs rising to First Floor.
Flat First Floor
Landing with stairs rising to Second Floor.
Cloakroom with W.C. and basin.
Kitchen/Living Room a spacious, bright and airy room with sash window overlooking Fore Street, fitted Kitchen with both base and wall mounted units, laminate worktop with inset electric hob with extractor over and oven beneath, inset stainless steel sink, space and plumbing for washing machine, space for under counter fridge, space for dining and sitting furniture, electric panel heater, high ceilings.
2nd floor
Large eaves storage cupboard.
Bedroom a very large double bedroom with outlook over Fore Street towards St. Andrews Church, access to loft, electric panel heater.
En-Suite Bathroom with panelled bath, pedestal basin, W.C., electric shower over bath, airing cupboard housing hot water tank.
Services
The Vendor has advised of the following, and it is advised to check all this information prior to viewing:-
Mains electricity, water, gas and drainage
Current utility providers:
Shop Electricity - Smartest Energy
Flat Electricity - key meter supply
Water and drainage - S.W. Water
Mobile coverage: O2 and Three networks currently showing as available at the property
Current internet speed showing at: Basic - 19 Mbps; Superfast - 80 Mbps;
Telephone: Landline connected in the property
Satellite/Fibre TV availability: BT and Sky
Floorplan
To discuss this property call our branch:
Market your property
with Thorne Carter and Aspen
Book a market appraisal for your property today. Our virtual options are still available if you prefer.
