Description
This impressive detached family home comes to the market for the first time since new. The property nestles in a mature location overlooking open green space, whilst being within easy reach of the town centre amenities and M5 for commuting.
Description
This impressive detached family home comes to the market for the first time since new. The property nestles in a mature location overlooking open green space, whilst being within easy reach of the town centre amenities and M5 for commuting. The ground floor accommodation comprises a hall with cloakroom, impressive kitchen/dining room, spacious sitting room and utility room. Upstairs, the principal bedroom benefits from a stylish en-suite shower, whilst there are three further spacious bedrooms and a family bathroom. Outside, this is one of the only properties in this area to benefit from a double garage and double width driveway parking, whilst the rear garden takes in a lovely sunny aspect. An early viewing is highly advised for those seeking an impressive family home.
Situation and Amenities
Enjoying a peaceful tucked away cul-de-sac setting within easy reach of High Street shops, supermarkets, primary school and doctors’ surgeries. Cullompton also boasts an award winning butcher (Veyseys of Cullompton), award winning coffee shop (The Bake House), a modern library, sports centre and community centre. The surrounding countryside offers a wealth of rural pursuits with the nearby Blackdown Hills being designated as an area of outstanding natural beauty. The comparatively central mid Devon location places the picturesque national parks of Dartmoor and Exmoor together with the north and south Devon coastlines all within a modest car journey.
Bullet Points
Executive style detached family home
Convenient location with easy access to M5
Kitchen/Dining Room
Sitting Room
Hall with Cloakroom
Utility Room
Principal Bedroom with En-Suite
Three further generous Bedrooms
Family Bathroom
Impressive Landing
Driveway parking
Double Garage
Sunny rear garden
15 miles Exeter, 18 miles Taunton
Tiverton Parkway Railway Station 6 miles
EPC rating - "C"
Council Tax Band “D”
Freehold
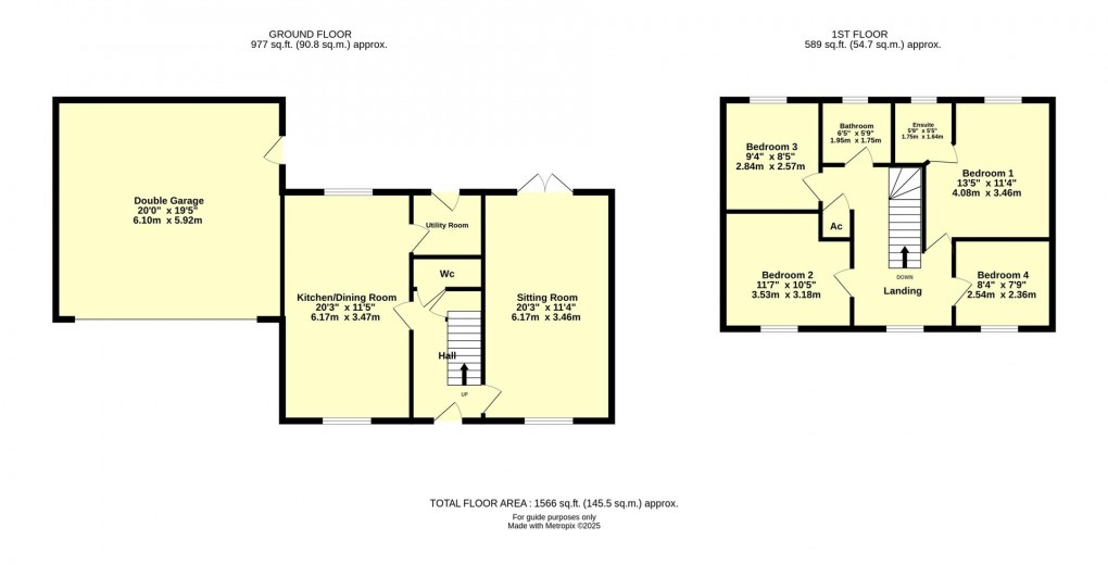
On The Ground Floor
Timber front door to Hall with stairs rising to first floor, access to understairs storage cupboard.
Cloakroom with close coupled W.C., basin.
Kitchen/Dining Room with extensive range of light ash effect units comprising both wall and base mounted cupboards, laminate worktop with inset gas hob with extractor over and double oven beneath, inset sink, integrated dishwasher, space for tall fridge/freezer, large dining space with plenty of room for family sized dining table and sofa, two radiators, tile effect flooring, dual aspect with outlook to both front and rear.
Utility Room with units and worktop matching the Kitchen, integrated sink, space and plumbing for washing machine, wall mounted gas fire boiler, door to rear garden.
Sitting Room an excellent dual aspect room running the entire depth of the house with French doors opening out to rear garden, two radiators.
On The First Floor
Impressive Landing lit by window overlooking open green space, access to loft, radiator, airing cupboard.
Bedroom 1 an excellent double room with outlook to the rear, radiator.
En-Suite with close coupled W.C., basin with storage beneath, corner shower with mains mixer shower, glass shower door, aqua-panel walls.
Bedroom 2 another excellent double room with outlook to the front, radiator.
Bedroom 3 with outlook to the rear, radiator.
Bedroom 4 with outlook to the front over open green space, radiator.
Bathroom modern white suite comprising close coupled W.C., pedestal basin, panelled bath, part tiled walls, towel rail/radiator.
Outside
The property benefits from a wide tarmac driveway with parking for at least two cars, leading to the Double Garage with roller door, both light and power and rear pedestrian door. The rear garden takes in a delightful southerly aspect and has been predominantly laid to lawn with some areas of patio, ideal for alfresco dining and entertaining. There are some established shrub borders, a Summer House and an outside tap. A side gate provides pedestrian access and the whole garden is fully enclosed by perimeter fencing, creating a safe environment for both children and pets.
Services
The Vendors have advised of the following, and it is advised to check all this information prior to viewing:-
Mains electricity, water, gas and drainage
Current utility providers:
Electricity - TBA
Gas - TBA
Water and drainage - S.W. Water
Mobile coverage: EE and O2 networks currently showing as available at the property
Current internet speed showing at: Basic - 15 Mbps; Superfast - 66 Mbps; Ultrafast - 1800 Mbps
Telephone: Landline - Not connected
Satellite/Fibre TV availability: BT and Sky
N.B there is a service charge for this property of approx. £304 per annum, this is very common with all modern developments. We advise that these figures are checked by your solicitor.
Floorplan
To discuss this property call our branch:
Market your property
with Thorne Carter and Aspen
Book a market appraisal for your property today. Our virtual options are still available if you prefer.
