Description
This exquisite town cottage has recently undergone a complete programme of refurbishment and is now offered for sale in a contemporary style, whilst still enjoying some wonderful character features. The ground floor accommodation comprises a lovely sitting room with log burning stove, spacious dining room and a fully refurbished kitchen. Upstairs, you are greeted by a charming landing, leading to two double bedrooms, a contemporary shower room and utility cupboard. The courtyard garden has been cleverly designed to maximise the space and takes in a remarkably secluded aspect. An early viewing of this exquisitely presented home, within easy reach of town centre amenities and the M5 for commuting is strongly advised.
Situation and Amenities
Within easy reach of High Street shops, supermarkets, primary school and doctors’ surgeries. Cullompton also boasts an award winning butcher (Veyseys of Cullompton), award winning coffee shop (The Bake House), a modern library, sports centre and community centre. The surrounding countryside offers a wealth of rural pursuits with the nearby Blackdown Hills being designated as an area of outstanding natural beauty. The comparatively central mid Devon location places the picturesque national parks of Dartmoor and Exmoor together with the north and south Devon coastlines all within a modest car journey.
Bullet Points
Comprehensively refurbished town cottage
Beautifully presented characterful accommodation
Gas central heating and double glazing
Contemporary style Kitchen
Spacious Dining Room
Gorgeous Sitting Room with log burner
Charming Landing
Two generous Double Bedrooms
Beautifully appointed Family Shower Room
Utility Cupboard
Secluded Courtyard Garden
15 miles Exeter, 18 miles Taunton
Tiverton Parkway Railway Station 6 miles
EPC rating “D”
Council Tax Band “A”
Freehold
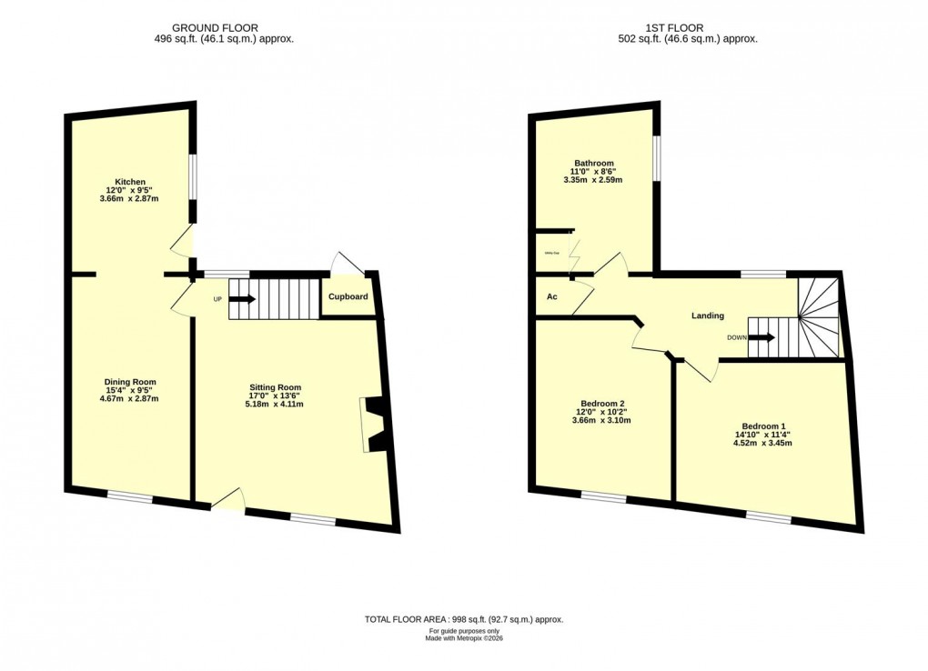
On The Ground Floor
Part glazed composite front door to
Beautiful Characterful Sitting Room with window overlooking the front, brick and stone fireplace housing log burning stove, feature ceiling and wall beams, stairs rising to first floor, engineered oak flooring.
Dining Room another lovely characterful room with outlook to the front, feature exposed wall timbers, engineered oak flooring, radiator.
Kitchen having been fitted in a contemporary style with a generous array of both wall and base mounted cupboards, integrated fridge/freezer, tall housing with oven and microwave, laminate worktop with inset four ring electric hob with extractor over, inset single drainer sink, mixer tap, door to garden, outlook over garden, engineered oak flooring.
On The First Floor
Spacious Landing with flank window overlooking courtyard garden, access to loft, airing cupboard housing gas fired boiler, shelving.
Bedroom 1 a fabulous double room with outlook to the front, feature fireplace, timber floor, radiator.
Bedroom 2 another excellent double room with outlook to the front, engineered timber floor, radiator.
Bathroom having been beautifully re-fitted in a contemporary style, close coupled W.C., pedestal basin, large walk-in shower with glass shower screen, mains mixer shower, marble aqua panel walls, storage cupboards, obscure glass window, towel rail/radiator, large cupboard with space and plumbing for washing machine and tumble dryer.
Outside
The property enjoys a charming and completely private courtyard garden which has been beautifully landscaped and paved to provide an excellent area for alfresco dining and entertaining. There is a Garden Shed along with a Timber Built Log Store and Bin Store and outside tap. The whole garden is fully enclosed, creating a safe environment for both children and pets.
Services
The Vendors have advised of the following, and it is advised to check all this information prior to viewing:-
Mains electricity, water, gas and drainage
Current utility providers:
Electricity - Scottish Power
Gas - Scottish Power
Water and drainage - S.W. Water
Mobile coverage: O2 network currently showing as available at the property
Current internet speed showing at: Basic - 18 Mbps; Superfast - 80 Mbps; Ultrafast - 1800 Mbps
Telephone/Broadband: Sky
Satellite/Fibre TV availability: Sky
Floorplan
To discuss this property call our branch:
Market your property
with Thorne Carter and Aspen
Book a market appraisal for your property today. Our virtual options are still available if you prefer.
